Cómo los pequeños de casa inteligente Cube2 por 52 mil dólares
Categorias: Diseño y Arquitectura | Mundo
Por Pictolic https://www.pictolic.com/es/article/cmo-los-pequenos-de-casa-inteligente-cube2-por-52-mil-dlares.htmlHogar inteligente Cube2 de la empresa Nestron no es demasiado caro y viene en forma acabada, con muebles y todas las comodidades: ven y vive! El interior de la casa está tan bien establecido, que es de 25 metros cuadrados, aquí pueden vivir 4 personas, sin interferir el uno con el otro.

Parece hogar inteligente Cubo 2 de la empresa Nestron. Vivienda con una superficie de 25 metros cuadrados se vende terminado con todo el interior, e incluso muebles. El costo de 52.000 dólares, que es alrededor de 3,5 millones de rublos. A pesar de la pequeña área, está diseñado de manera inteligente que se puede vivir con cuatro personas, sin interferir el uno con el otro.

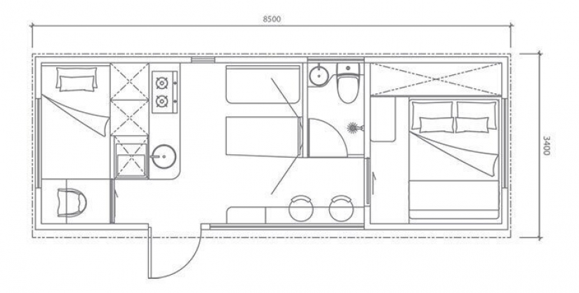
Parece que el plan interno de la casa.
La casa viene completamente listo para entrar a: instalar y llamar!

En una pequeña área de ajuste de la sala de estar, cocina, dormitorio, cuarto de baño e incluso un bar.

Gracias a un ingenioso arreglo, el área efectiva de la casa inteligente es un 15% más que el convencional de la vivienda.

Las ventanas están colocadas estratégicamente para proporcionar no sólo la luz, sino también para el área de la casa que visualmente se vean más grandes.
Integrado en el mobiliario está incluido en el precio de la casa.

Integrado en el mobiliario incluye mesa de comedor, sofá-cama (cuadro sin colchón), armario y estanterías para el dormitorio.

La casa puede alojar a una familia de 4 personas.

La casa está equipada con inteligencia artificial auxiliar que controla todas las aplicaciones integradas.

Nombre del asistente es Astuto, y él es capaz de aprender y adaptarse a las necesidades de los propietarios.
Con la ayuda de Canny, usted puede encender y apagar la luz de la voz.

La casa es ciertamente amplio y no se nombre.

Su área precisa de 24,4 metros cuadrados. m.

Sin embargo, la estructura interna de la casa y la gestión inteligente hace que sea sencillo para vivir en familia.
Palabras clave: La construcción | Invención | El diseño | La usabilidad
Publicar artículo de noticiasArtículos Recientes
< p>El estadounidense Alex Greenberg, que se mudó a China, recopila ejemplos divertidos y con cerebro de la moda china en su ...
El Año Nuevo es una fiesta de magia y cumplimiento de deseos. Naturalmente, quiero que esta fiesta sea recordada por mucho tiempo ...
Artículos relacionados
Cuando la gente sólo soñaba con el control remoto. Ahora que hemos cambiado las canales en el TELEVISOR con un plástico, cosa ...
La era victoriana comenzó en 1837 con la llegada de la reina Victoria y duró hasta 1901. Durante este período, la gente logró ...
Algunas cosas fueron inventadas con un propósito completamente diferente al que las usamos ahora. ¡Pero esto es aún mejor!

En un número reciente de acoso sexual en boca de todos. Inadecuado Intrusivo y signos de atención comenzó a ver a su alrededor, ...